Masseria in vendita con progetto approvato – RIF: 104RTB25

  • €650,000
SP359, Manduria, TA, Italia
In vendita Campagna Mare Masseria Salentina Vista mare
Masseria in vendita con progetto approvato – RIF: 104RTB25
SP359, Manduria, TA, Italia
  • €650,000

Descrizione

Spiagge bianche, acque cristalline e natura incontaminata fanno di Punta Prosciutto una delle località balneari più esclusive del Salento. Situata sulla costa ionica, questa località è una destinazione sempre più ricercata da turisti italiani e stranieri, attirati dal fascino del mare tra i più belli d’Italia.
Nei pressi di queste meravigliose spiagge, a meno di 5 km dal mare, noi di Temiño Premium Properties proponiamo in vendita una masseria completamente da ristrutturare, ma con progetto già approvato per la realizzazione di una struttura turistico-ricettiva in una posizione vantaggiosa, trovandosi a ridosso della provinciale che collega Nardò ad Avetrana, garantendo un facile accesso, pur rimanendo a pochi minuti dalle magnifiche spiagge della zona.
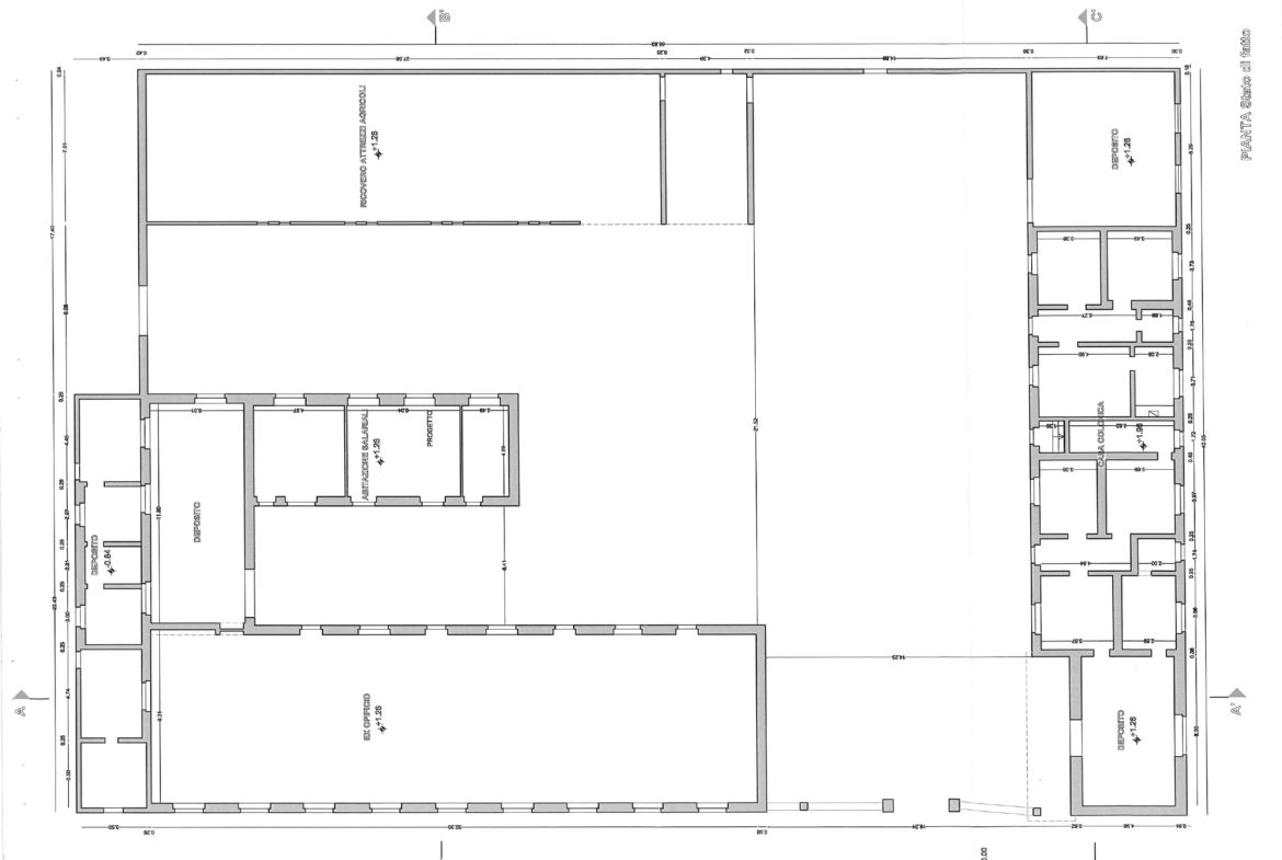
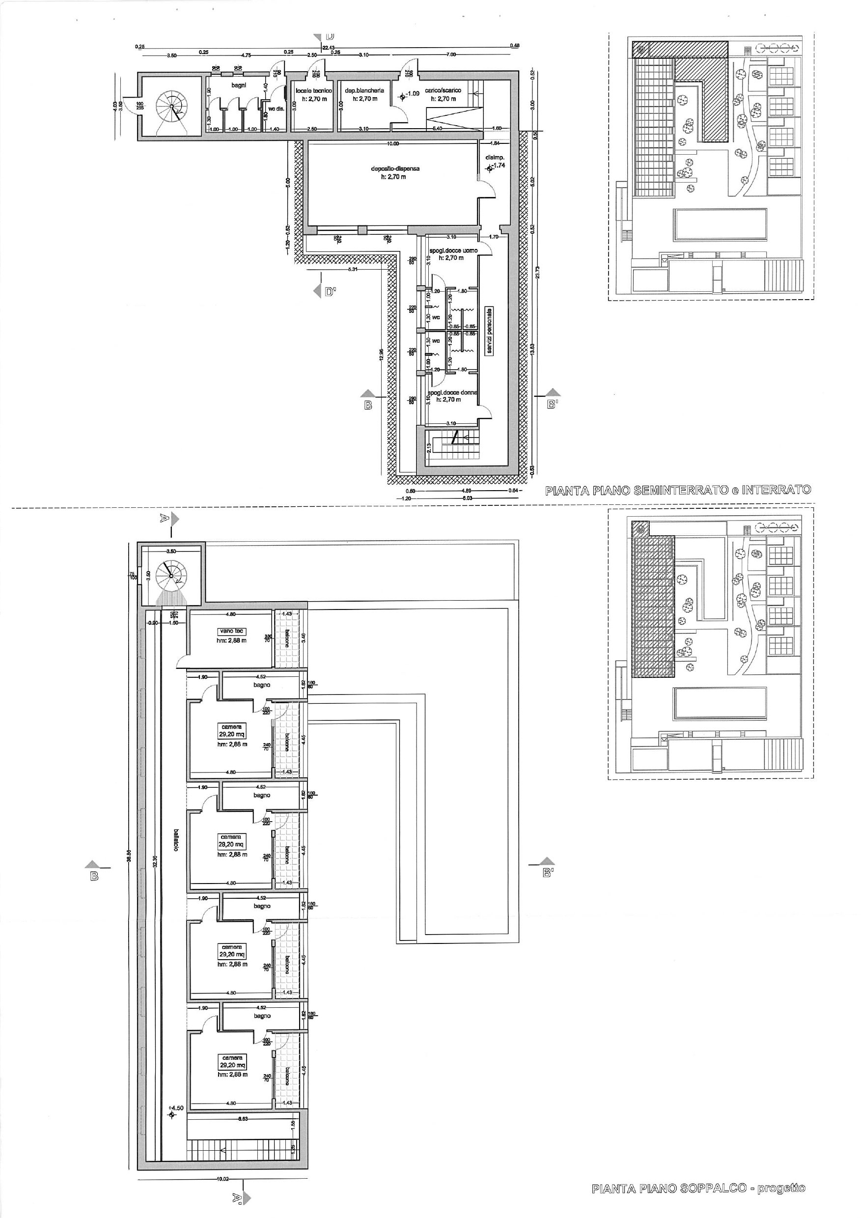
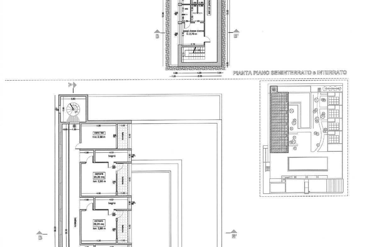
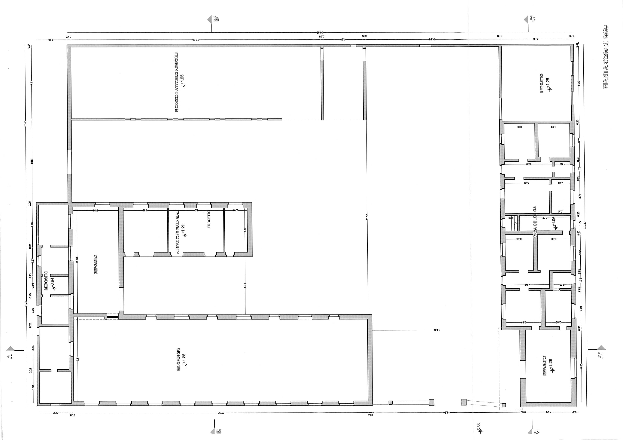
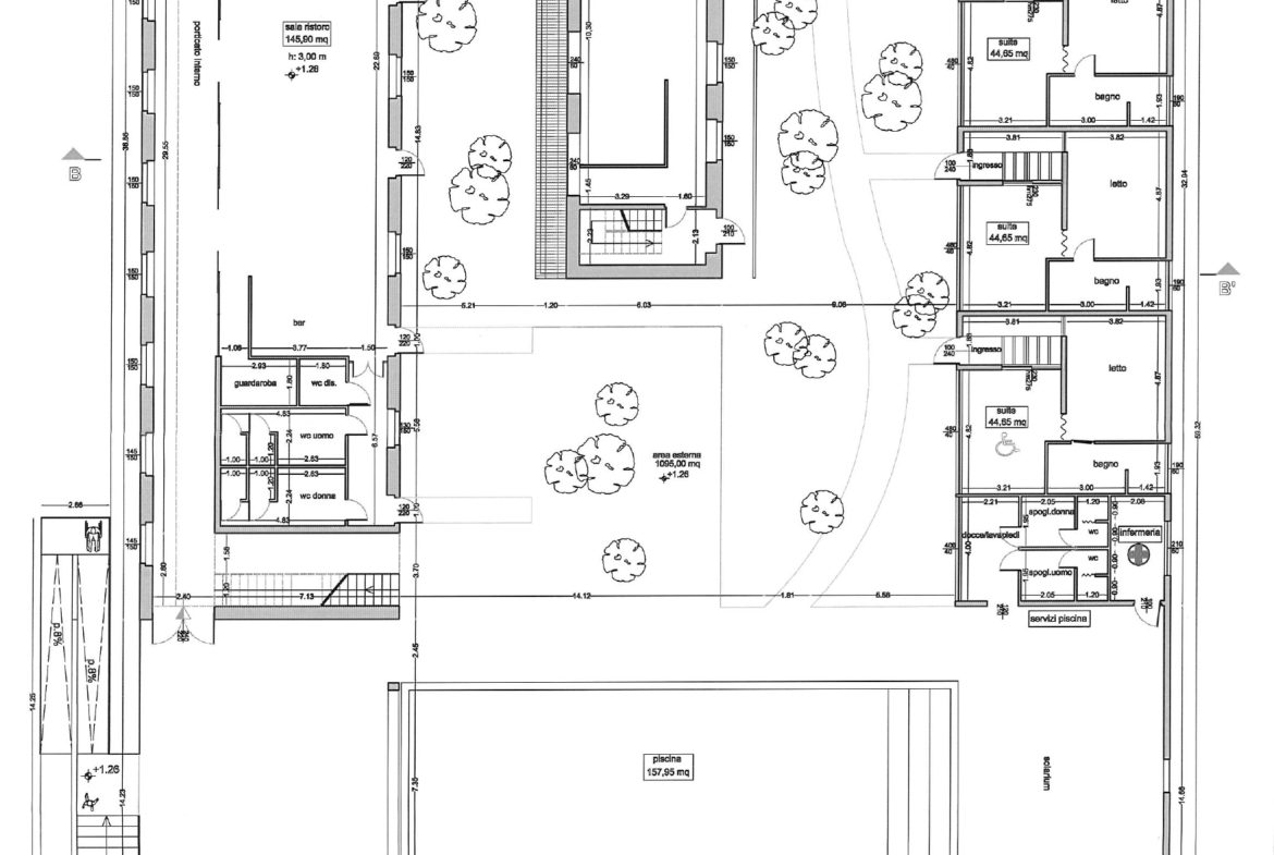
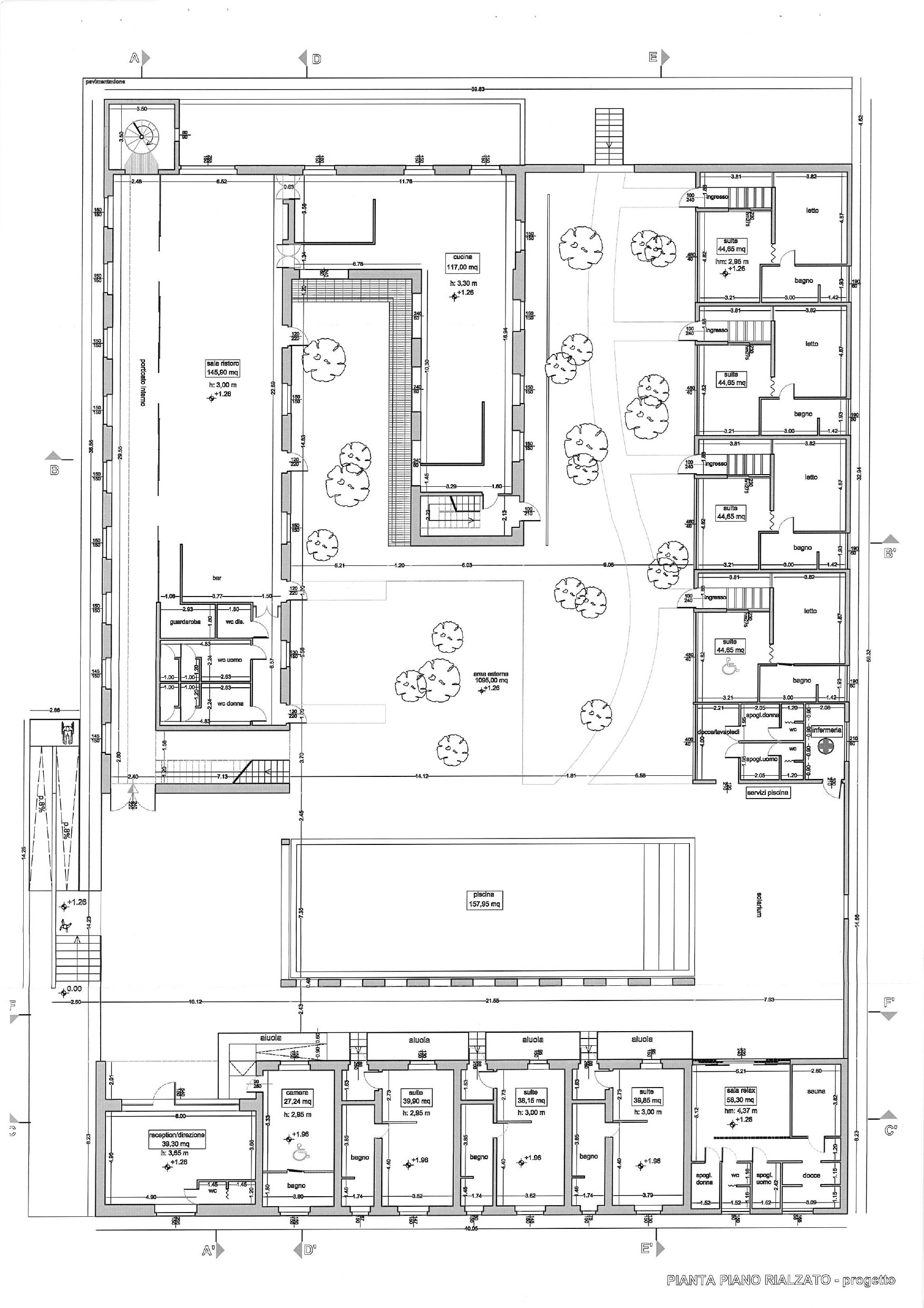
Nello stato attuale la masseria ha una superficie lorda di 1100 mq con un parco di 15 ettari, mentre il progetto già approvato prevede la realizzazione di una struttura ricettiva che disporrà di 24 unità abitative indipendenti, 1 sala ristoro con una capacità di 80 coperti che può essere utilizzata anche come sala conferenze all’occasione, sala cucina comunicante alla sala ristorante con servizi annessi per il personale, una zona sauna, una piscina esterna a sfioro della dimensione di 140 mq e nella zona del parco prevede anche la creazione di un biolago, pensato per la sosta e il passaggio di uccelli stanziali e migratori.
Con un flusso turistico in continua crescita, questa proprietà rappresenta un’occasione imperdibile in grado di rispondere perfettamente a una reale domanda di mercato
Hai voglia di saperne di più sul progetto e poter iniziare il prima possibile a realizzare il tuo sogno? Contattaci!

Temiño Premium Properties è un’agenzia immobiliare specializzata nella compravendita di immobili che raccontano la storia della Puglia! Lavoriamo solo in esclusiva per aiutarti ad acquistare l’immobile che hai sempre desiderato, in totale sicurezza, trasparenza e con la massima riservatezza. Temiño Premium Properties: your Smart property manager!

Particolari

ID della proprietà
104RTB25
Superficie coperta
1180 metri quadri
Superficie area esterna
15 ettari
Aggiornato il Marzo 7, 2025 at 10:11 am

Indirizzo

  • Città Porto Cesareo
  • Zona Periferia

Cosa c'è nelle vicinanze?

Arte e intrattenimento
Edicola Todisco di Todisco Giuseppe (4.75 mi)
0 recensioni
Artek di DE Marco / Rocco Antonio (4.94 mi)
0 recensioni
Arte Verde di Olivieri Valeria (4.99 mi)
0 recensioni
Istruzione
Asilo Infantile Sant'antonio (4.86 mi)
0 recensioni
Artek di DE Marco / Rocco Antonio (4.94 mi)
0 recensioni
Discepole di Gesu' Eucaristico (5.74 mi)
0 recensioni
Cibo
Il Ristorante Shadak (1.14 mi)
0 recensioni
Ristorante Lido delle Sirene (1.49 mi)
0 recensioni
Teranga (1.73 mi)
0 recensioni
Salute e Medicina
Dott. Luciano Cosma (4.59 mi)
0 recensioni
Duggento / Palmo (4.96 mi)
0 recensioni
Dott.ssa Antonietta D'oria (19.65 mi)
0 recensioni

Informazioni di contatto

Temiño Premium Properties
  • Temiño Premium Properties
Visualizza annunci

Richiedi informazioni su questa proprietà

Annunci simili

Confronta Strutture

Confronta
Temiño Premium Properties
  • Temiño Premium Properties